Italiano
English
Français
Español
1.450.000 €

Prestigioso Appartamento a Casciago

Appartamento in vendita • Casciago - Via Vittorio Emanuele II
Nell’esclusiva cornice di Casciago, a pochi passi dal centro, proponiamo in vendita un appartamento di pregio situato all’interno di una villa d’epoca del ’700, immersa in un contesto riservato e tranquillo. “Villa della Torre” è un edificio storico dal fascino senza tempo, recentemente oggetto di una sapiente ristrutturazione che ha saputo coniugare eleganza e modernità.

Varcato il portone d’ingresso della residenza, si attraversa un cortile curato e si rimane subito affascinati dall’incantevole vista aperta.
L'appartamento è servito da ascensore, si sviluppa su un unico livello e si caratterizza per le finiture di altissima qualità e per l’elevata efficienza energetica, grazie ai moderni impianti di cui dispone.
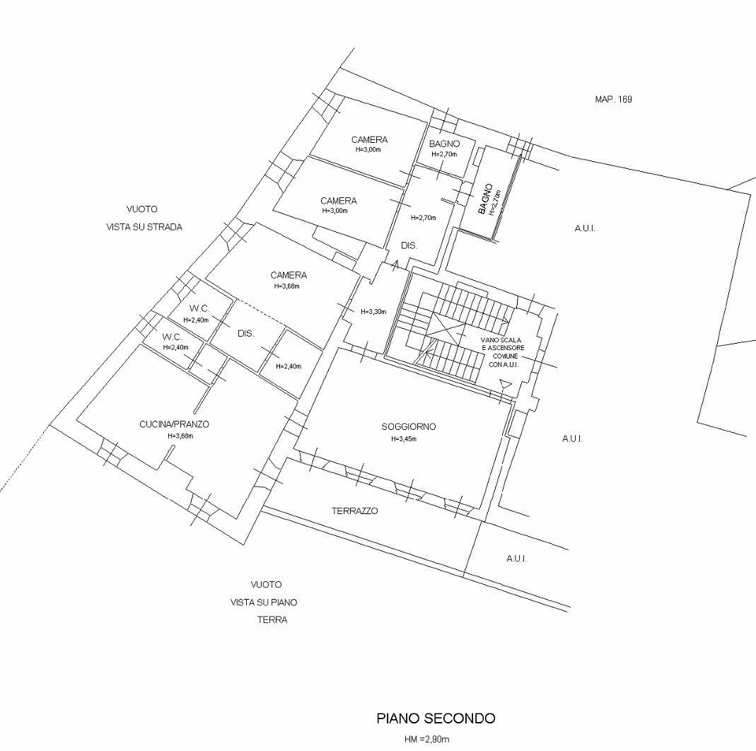
L’ingresso, ampio ed accogliente, introduce al cuore della casa: un soggiorno raffinato e luminoso, dallo stile unico, impreziosito da soffitti affrescati. Da qui si accede ad un terrazzo panoramico, ideale per godere di una splendida vista. Una piacevole sala da pranzo con camino, intima e suggestiva, offre un ambiente ideale per trascorrere pranzi e cene con amici e familiari.
La cucina è spaziosa ed abitabile. La zona notte offre tre camere da letto, di cui una con bagno en suite, oltre ad altri tre bagni completi, dotati di sanitari sospesi e docce walk-in, per garantire il massimo comfort.

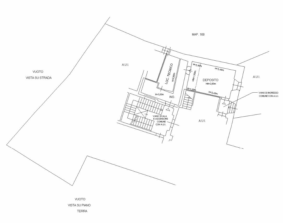
La proprietà si distingue per uno stile caldo e accogliente, con un’attenta valorizzazione dei materiali: pavimenti in parquet, infissi in doppio vetro in legno ad alte prestazioni ed eleganti travi a vista che donano calore e carattere agli ambienti. Sono presenti inoltre una comoda lavanderia e un ulteriore locale versatile, ideale come zona hobby, studio o ufficio. A completamento della proprietà troviamo un box doppio in larghezza con portone sezionale motorizzato, un posto auto scoperto, una spaziosa cantina ed un giardino ad uso esclusivo.

Una residenza unica, dal fascino intramontabile e dall’architettura raffinata, che si fonde perfettamente con efficienza e comfort, dove ogni angolo racconta una storia.
Caratteristiche principali
Codice
vcv_casciago_la torre
Città
Casciago
Categoria
Appartamento
Prezzo
1.450.000 €
Locali
5
Camere
3
Bagni
4
Mq
260
Box
2
Posti auto
1
Balconi
1
Classe energetica
A
25,88 kWh/m²a
Stato Immobile
Ristrutturato
Grado
Signorile
Infissi
Legno Doppio Vetro

Accessori: Aria Condizionata, Ascensore, Cancello Elettrico, Doppi Vetri, Impianto Domotica, Passaggio Pedonale, Tavolini Esterni, Video Citofono

Mappa
Via Vittorio Emanuele II , Casciago (VA)
Condividi su
Cookie preference